
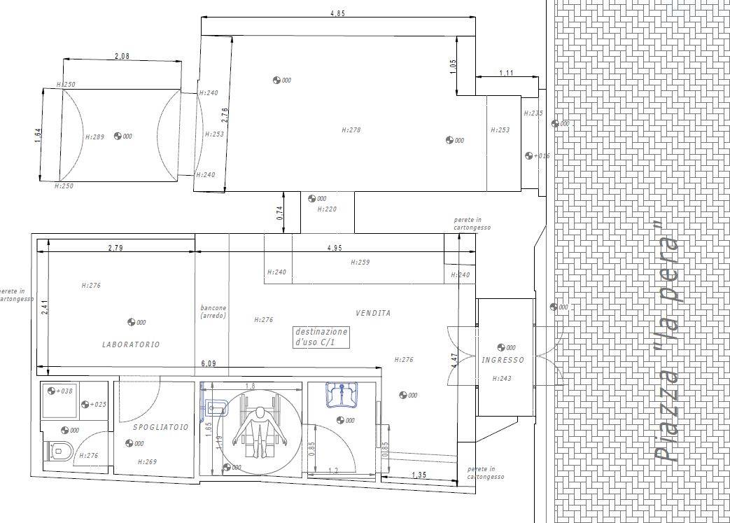
Vendesi a Pisa fondo commerciale in Piazza Gambacorti detta anche Piazza la Pera; affacciato con due vetrine su una delle più belle piazze del centro storico il fondo commerciale è stato completamente ristrutturato ed è composto da due vani oltre a piccola cucina e doppi servizi. Ideale per un'attività di somministrazione. Inserito in un bel fabbricato storico con facciata appena ristrutturata, l'immobile è vincolato dalla Sovrintendenza alle belle Arti con interessanti vantaggi fiscali
Il fondo commerciale in vendita a Pisa centro storico si trova nelle adiacenze di Corso Italia è un ottimo investimento con possibilità di alta redditività mensile
For sale in Pisa, a commercial property in Piazza Gambacorti, also known as Piazza la Pera. Overlooking one of the most beautiful squares in the historic center, the fully renovated commercial property comprises two rooms, a small kitchen, and two bathrooms. Ideal for a catering business. Located in a beautiful historic building with a recently renovated façade, the property is listed by the Superintendence of Fine Arts, offering attractive tax benefits. The commercial property for sale in Pisa's historic center is located near Corso Italia and is an excellent investment with the possibility of high monthly returns.
RIF. TL2616198
Nota bene: per ragioni di riservatezza la posizione dell'immobile non corrisponde alla sua reale ubicazione, ma è indicativa.